General Usage Instructions

Prepare your drawing:

drawing units should be in metric millimetre. The dimension text should be 20 or 25. The annotation scale should be 20 for best visibility.

To quickly grasp the workflow, you should open the Sample Test.dwg drawing and follow the instruction. The link to the Sample Test.dwg is available on the 7cad Window Frame Palette.

Run 7cadWindowFrame command from the app's ribbon, or from command prompt. Then, you can see the app's palette. Following are the workflow of the app, from creating inputs to generating ouputs, all commands are on the Palette:

1. Insert Window Frame

This is the base object. Once inserted, you can select the window frame and adjust the left, right, top, bottom jamp and thickness lengths by using AutoCAD Properties palette.

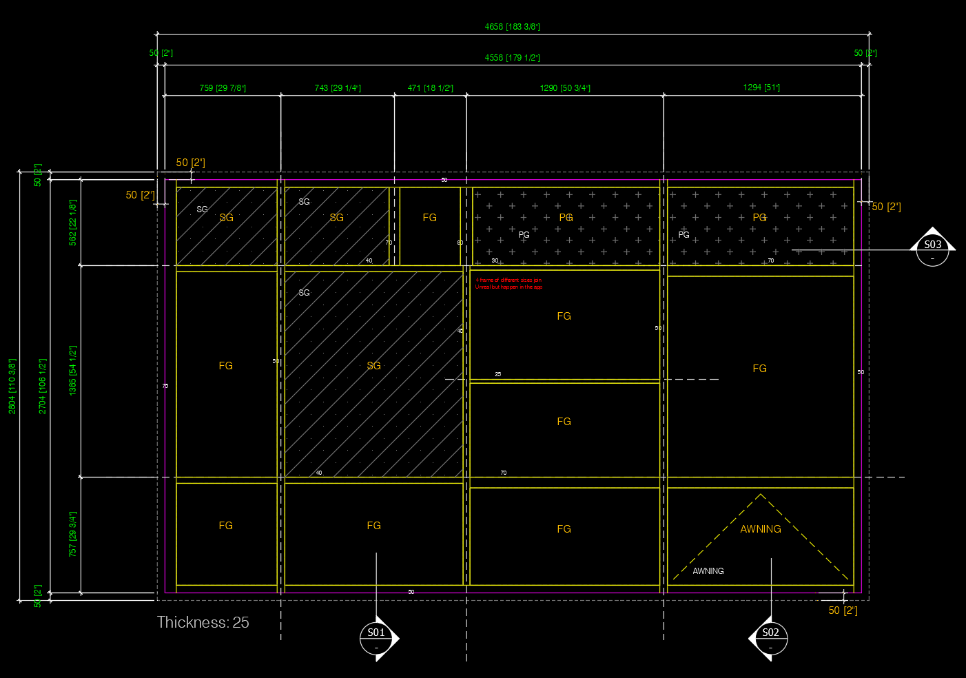
Note 1: 4 frame sizes of the Window Frame are 40 by default. Edit the size tag texts to your design specification.

Note 2: There is thickness attribute of all window frame tubes. Default value is 25. Edit it to your design specification.

2. Draw window frame sketch lines

Within a window frame there are many dividing framing rectangular tubes. Input for these tubes are lines in "Window Frame Sketch" layer. Lines must be horizontal or vertical and lines should be crossing each others or crossing the window frame. On each line, there is a tag text as input for the frame size. Edit these frame size texts using AutoCAD common editting tools. Also, split the frame sketch line into two lines if you want to have different sizes.

Tip1: Set your Window Frame Sketch layer linetype to HIDDEN linetype for best visibility result, as in the Sample Test.dwg drawing

Tip2: Each frame sketch line should have only one tag, and each tag should be associated with only one frame sketch line. Move tags on frame sketch lines so that there is no confusing case like one tag close to 2 frame lines.

3. Insert infill glass tags

Infill glass tags are just texts in "Window Frame Sketch" layer. They are input objects for the app to generate glass window panes. There are 4 types of them: FG, SG, PG and AWNING

4. (Optional) Insert Section Callout

The app works only with horizontal and vertical section callouts. Insert, move these section callouts into places. The app reads these section callouts to generate Detail Sections

Note: Detail section is scaled up 5 times in Y axis for better visibility

5. Final command: 7cad Window Frame Generate

Select input objects and press enter. The app will generate the Window Frame drawing as the final result.

6. (Optional) To clear the output results and get back to "sketch canvas" to edit the sketches lines and texts, run this command: Clear Window Frame Result

Note that, command (5) 7cadWindowFrameGenerate already includes this command (6). That means, (5) will clear the outputs before generate new ones

Screenshots

INPUT

OUTPUT

Version History

Version Number Version Description

1.0

Initial public release.